Property Details
Property Details
- PrimeMLS: 5013010
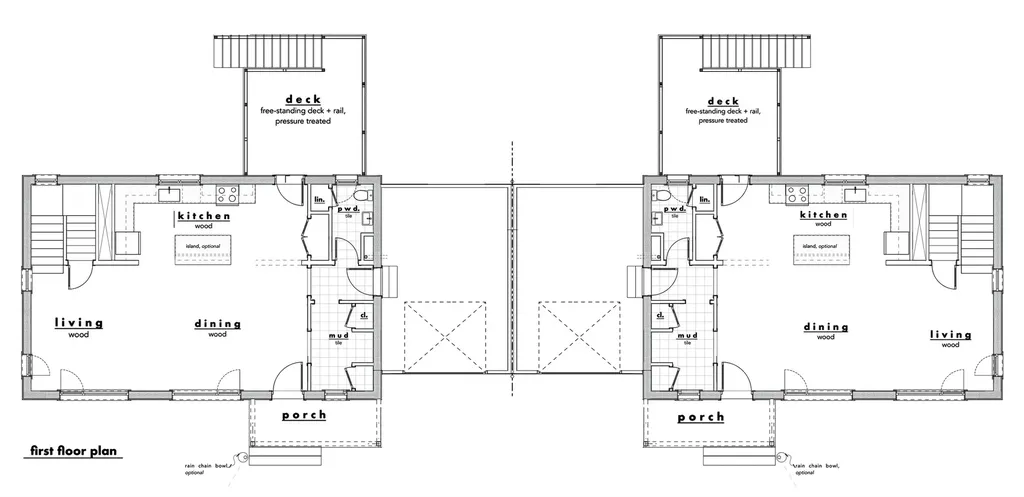
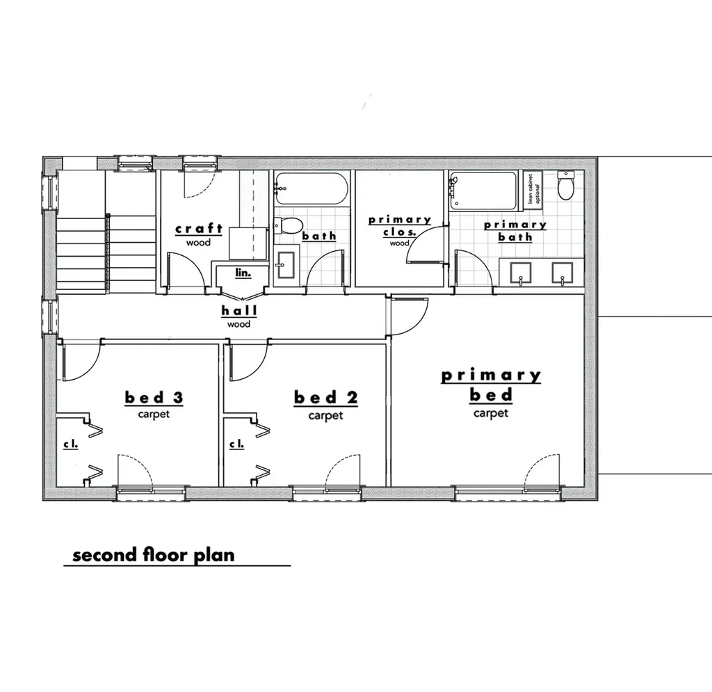
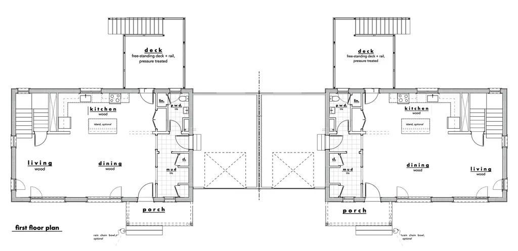
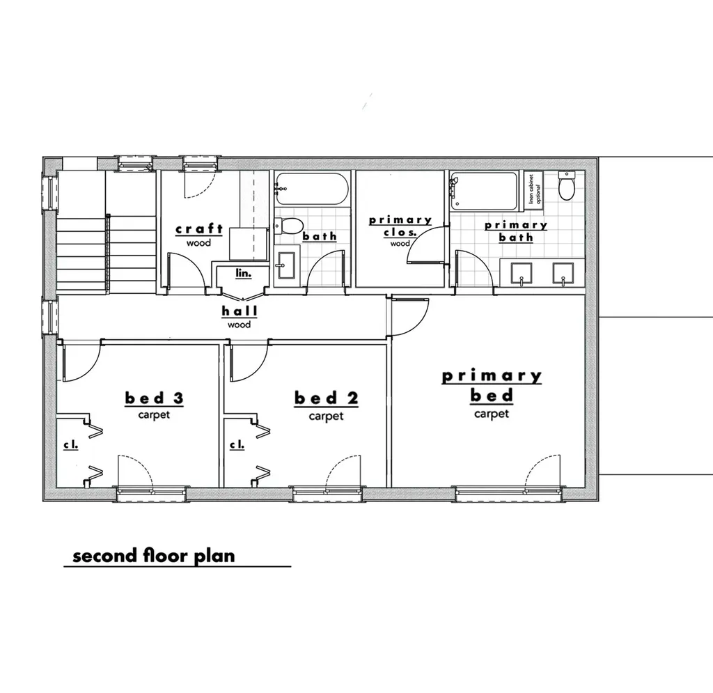
Property
- Square Feet: 1,967
- Year Built: 2024
- Stories: 2
- Bedrooms: 3
- Bathrooms: 3
- Roof: Fiberglass Shingle
- Garage Spaces: 1
Location
- Town: Hudson
- County: Hillsborough
- State: NH
- Zip: 03051
Interior Features
Room List
- Bedrooms: 3
- Bathrooms: 3
Basement
- Basement: Walkout



































Connect