Property Details
Property Details
- PrimeMLS: 5055471
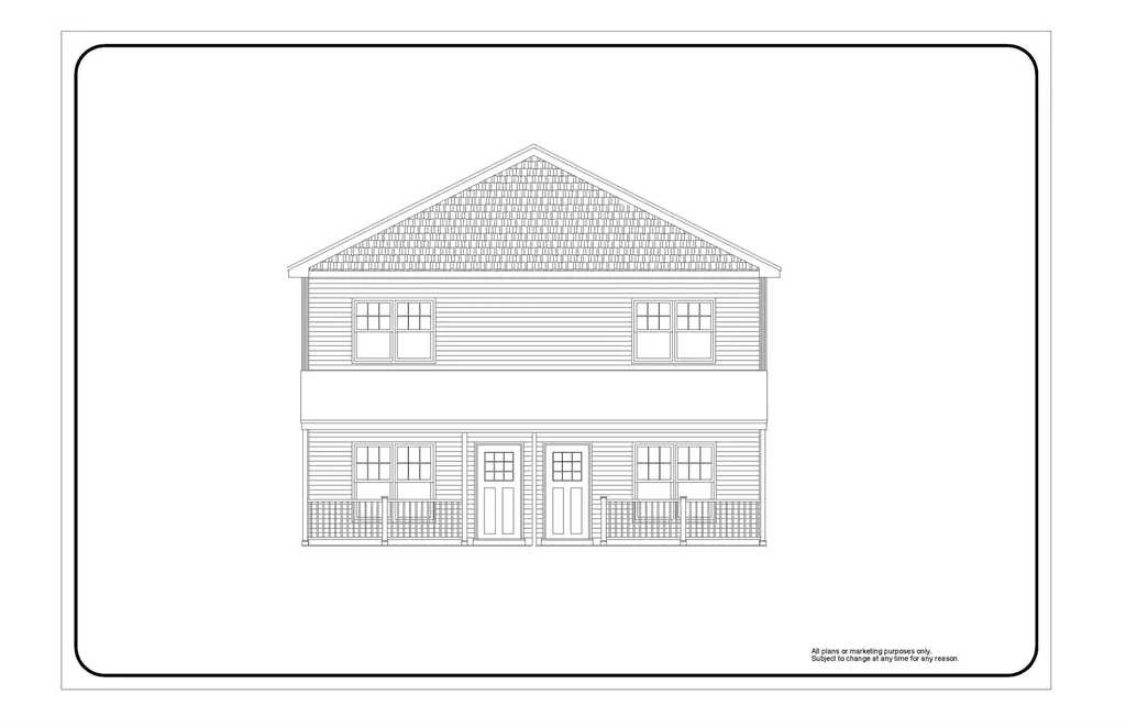
Property
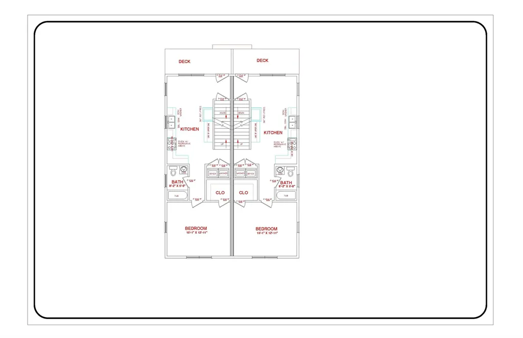
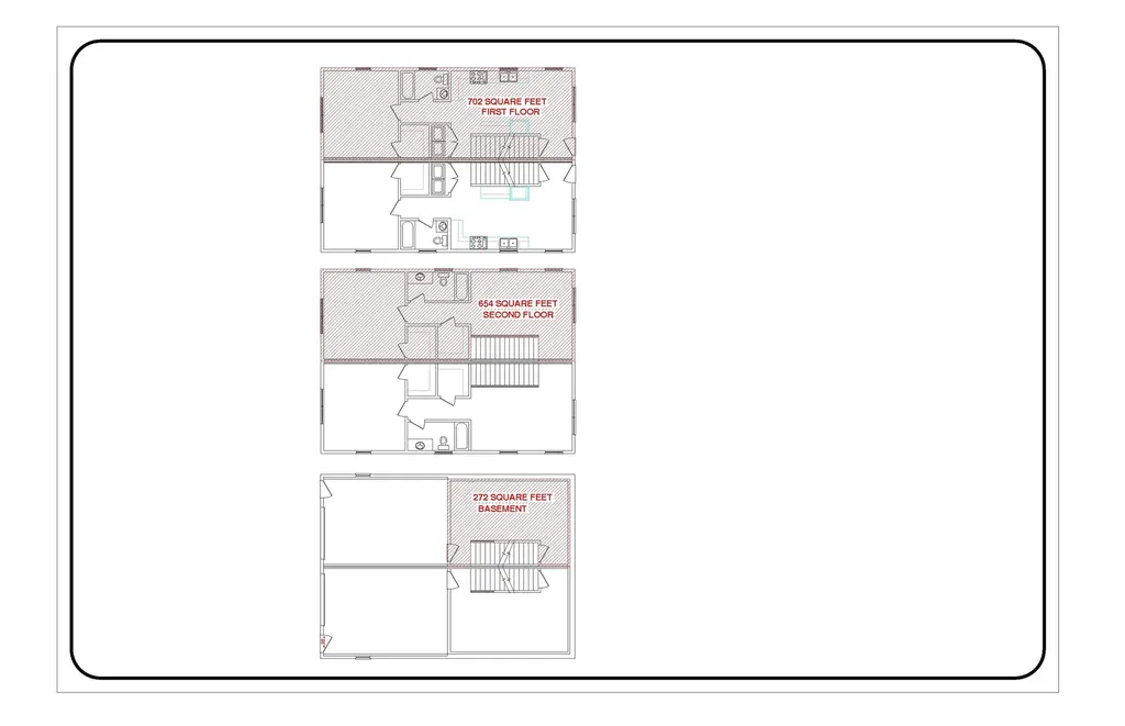
- Square Feet: 1,550
- Year Built: 2025
- Stories: 3
- Bedrooms: 2
- Bathrooms: 2
- Roof: Architectural Shingle
- Garage Spaces: 1
Location
- Town: Windham
- County: Rockingham
- State: NH
- Zip: 03087
Interior Features
Room List
- Bedrooms: 2
- Bathrooms: 2
Basement
- Basement: Concrete Floor, Unfinished, Walkout
Community
Amenities
- Adult Community: Yes
Other Details
Finance
- HOA Fee: $450
Water
- Water Access: No























Connect